一、农房概况
竹风穿巷,木语 盈堂。在桃江县广袤的乡村阡陌间,一栋栋融合乡土文脉与现代科技于一体的装配式木构农居正成为美丽乡村新风景。项目以现代木结构为核心,创新运用装配式建设理念,让兼具安全稳固、绿色低碳、宜居舒适的高品质农居从蓝图变为实景。
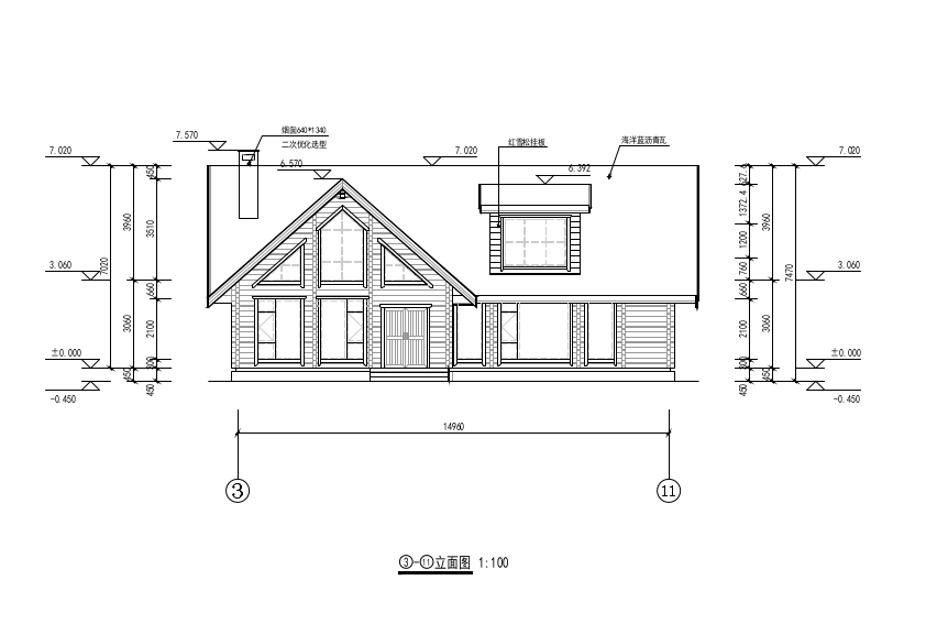
桃江县栗山河村装配式木构农居位于益阳市桃江县栗山河村,2025年10月开工建设,同年11月竣工交付。该农居为现代木结构住宅,采用双坡屋顶设计,外观呈现简洁大气的经典造型,整体南向采光充足,户型布局动静分区合理、居住流线顺畅。项目以“装配式木结构+自然共生”为设计核心理念,依托木材天然环保、温润宜居的特性,将现代建造技术与乡土建筑风貌有机融合,打造出健康舒适、低碳节能且富有自然肌理与地域美感的乡村居住样板,是桃江县推进绿色装配式木构农居建设、提升农村住房品质的示范标杆工程。
二、设计理念与建造特色
该装配式木构农居在基础层采用加厚钢筋混凝土筏板浇筑,进一步提升地下结构的密闭性、抗冲击性与承重能力。主体采用胶合梁柱与井干式原木混合结构,筑牢居住安全根基。原材料精选低温生长的优质进口木材,质地坚韧、稳定性强,经防腐、防火、防霉、防白蚁“四防”工艺处理,既延长了木材使用寿命,又使建筑耐火等级达到三级标准,抗震设防烈度符合区域设防要求。工厂标准化预制构件通过高精度螺栓精准连接,现场实行干法吊装作业,无需传统湿作业,6-7天即完成主体结构搭建,工期较传统农房建造缩短70%以上,有效提升建造效率、降低施工损耗。在风格与宜居性上,项目深度融合桃江乡土元素与现代宜居需求,促进建筑与自然、传统与现代的和谐共生。现代原木风格与山水田园相融,在保留乡村记忆的同时提升居住品质。室内空间以天然木材为基底,木材释放的高浓度芬多精与负离子,可有效净化空气、舒缓身心,营造出健康、温润、舒适的居住环境,真正实现“推窗见绿、栖居自然”的乡村居住愿景。
三、社会价值及文化意义
该装配式木构农居立足乡村实际需求,从设计理念到施工工艺进行全面优化,为村民打造了安全坚固、舒适宜居、美观雅致的现代化居住空间,让乡村住宅既有“颜值”更有“内涵”。它成功探索出装配式木结构在乡村建设中的规模化、规范化应用路径,其成熟的设计、施工模式具备可复制性与推广性,为益阳农房建设提供标准化样本,促力乡村住宅从“传统建造”向“现代智造”转型,有力推动农村住房实现“安全有保障、品质有提升、风貌有特色”的目标。
(装配式木构农居立面设计图)



